Projekte

Neubau einer Mensa in Dormagen-Rheinfeld für die Regenbogenschule!

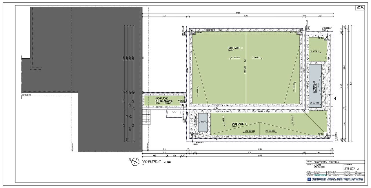
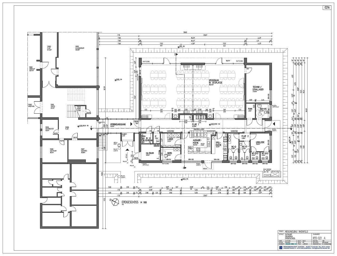
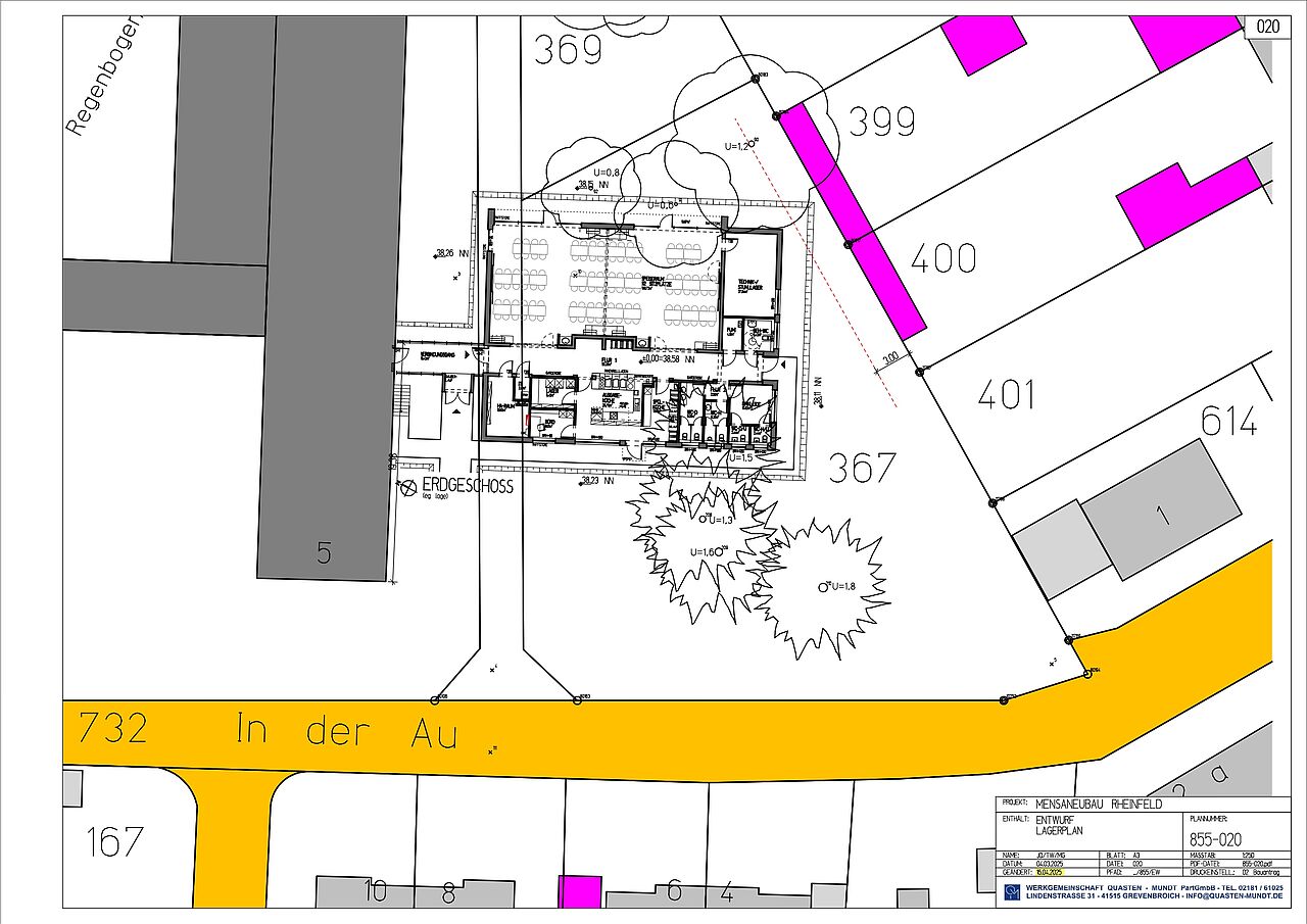
Die Regenbogenschule in Dormagen erhält eine moderne, nachhaltige und funktionale Mensa, die den Bedürfnissen der Schulgemeinschaft gerecht wird und gleichzeitig einen wichtigen Beitrag zur CO2-Reduktion (Gründach, PV-Anlage nebst Speicher) leistet. Geplant ist der Bau einer eingeschossigen Mensa, die neben einem großzügigen Speiseraum für etwa 220 Schülerinnen und Schüler auch eine Ausgabeküche und weitere Nebenräume umfasst. Die Mensa wird im südlichen Bereich des Schulgeländes an der Straße „In der Au“ errichtet und nahtlos an das bestehende Hauptgebäude angebunden.

Optimale Gestaltung für eine effiziente Essensversorgung

Die Mensa wird so konzipiert, dass eine Essensversorgung im Zwei-Schicht-Betrieb sichergestellt werden kann. Das Essen wird dabei angeliefert, weshalb eine voll funktionsfähige Ausgabeküche notwendig ist. Für die Regenbogenschule ist dies ein bedeutender Schritt hin zu einer effizienten und komfortablen Verpflegung der Schülerinnen und Schüler. Der Speiseraum bietet ausreichend Platz für die Schülerinnen und Schüler und schafft eine angenehme Atmosphäre für die gemeinsame Mahlzeit.

Nachhaltigkeit als Kernprinzip

Im Einklang mit der städtischen Vision von Dormagen, die Bedeutung von erneuerbaren Energien und Energieeffizienz im Alltag fest zu verankern, wird das Gebäude in nachhaltiger Holzbauweise errichtet. CO2-Emissionen werden durch moderne Baukonzepte und nachhaltige Materialien reduziert und langfristig mindestens kompensiert. Damit wird nicht nur eine funktionale Mensa für die Regenbogenschule geschaffen, sondern auch ein umweltbewusster Beitrag zur Gestaltung klimafreundlicher Siedlungsgebiete in Dormagen geleistet.

Berücksichtigung des Schulbetriebs und enge Zusammenarbeit mit der Schulleitung

Während der gesamten Bauphase wird auf den laufenden Schulbetrieb Rücksicht genommen. Eine enge Abstimmung mit der Schulleitung ist essenziell, um störungsfreie Abläufe zu gewährleisten und den Schulalltag nicht zu beeinträchtigen. Die Bauarbeiten werden so koordiniert, dass eine optimale Nutzung der vorhandenen Schulstrukturen gewährleistet bleibt.

Ein zukunftsweisendes Projekt für die Stadt Dormagen

Die Mensa der Regenbogenschule wird nicht nur als Ort der Verpflegung, sondern auch als ein Beispiel für moderne, umweltfreundliche und nachhaltige Bauweise dienen. Sie erfüllt alle technischen und funktionalen Anforderungen und ist auf eine langfristige Nutzung ausgerichtet. Das Projekt trägt zur positiven Weiterentwicklung des Stadtteils Rheinfeld bei und fördert ein gesundes und zukunftsfähiges Umfeld für die Schülerinnen und Schüler. 

Neue Kita in Hackenbroich-Hackhausen

Herzlich willkommen in unserer neuen Kindertagesstätte in Dormagen-Hackhausen, die mit viel Liebe und Respekt für Natur und Umwelt geschaffen wurde. Die Kita befindet sich auf einem großzügigen Grundstück von etwa 3.300 m² und bietet auf einer Mietfläche von rund 1.196 m² Platz für insgesamt fünf Gruppen.

Das Konzept der Kita basiert auf der zentralen Idee, den wunderschön erhaltenen Baumbestand auf dem Gelände zu bewahren und das Gebäude sowie die Kinder harmonisch in diese natürliche Umgebung zu integrieren. Der Holzbau, der ressourcenschonend und nachhaltig umgesetzt wurde, unterstützt nicht nur die Verbindung zur Natur, sondern bietet auch ein gesundes und behagliches Raumklima für die Kinder.

Das eingeschossige Gebäude in U-Form schließt mit seinen drei Schenkeln einen weitläufigen Innenhof ein, der den Mittelpunkt der Kita bildet. Hier können die Kinder spielen, entdecken und sich frei entfalten. Eine extensive Dachbegrünung, kombiniert mit einer Photovoltaikanlage, macht das Gebäude zudem zu einem Modell für nachhaltiges Bauen und zeigt unser Engagement für eine umweltfreundliche Zukunft.

Ein weiteres Highlight der Kita ist die großzügige Außenfläche, die den Kindern viel Platz zum Spielen und Toben bietet. Ob im Garten, unter den Bäumen oder auf den Spielgeräten – hier sind der Fantasie keine Grenzen gesetzt.

Mit diesem Neubau schaffen wir einen Ort, an dem sich die Kinder in einer sicheren, grünen und inspirierenden Umgebung entwickeln können. Wir freuen uns darauf, mit unseren kleinen Entdeckern die Natur zu erleben und ihnen gleichzeitig ein nachhaltiges und zukunftsorientiertes Umfeld zu bieten.

Neubau „Am Felder Hof“: Modernes und nachhaltiges Wohnen

Das neue Bauprojekt Am Felder Hof in Dormagen-Nievenheim bietet eine besondere Mischung aus sozialem Wohnungsbau und umweltfreundlicher Architektur. In einem der wachsenden Stadtteile gelegen, setzt dieses Vorhaben einen klaren Fokus auf hohe Wohnqualität und ökologische Verantwortung.

Innovativer Wohnraum in aufstrebender Lage

Am Felder Hof umfasst insgesamt fünf Mehrfamilienhäuser mit insgesamt 50 modernen Wohnungen. Besonders hervorzuheben ist der soziale Wohnungsbauanteil: 40 der Einheiten werden öffentlich gefördert, während die verbleibenden 10 frei finanzierte Wohnungen modernen Ansprüchen gerecht werden und durch nachhaltiges Design überzeugen.

 

Zukunftsweisende Bauweise und Ausstattung

Ein herausragendes Merkmal des Projekts Am Felder Hof ist die Verwendung der innovativen Holzmodulbauweise. Diese Bauweise reduziert den Materialverbrauch und beschleunigt die Bauzeit erheblich, während sie gleichzeitig umweltfreundliche Materialien nutzt. Ziel des Projekts ist es, eine beachtliche Nutzungsfläche von über 95% zu erreichen.

Die fünf Gebäude des Projekts bieten zwei Vollgeschosse und ein Staffelgeschoss, wobei die Flachdächer begrünt sind. Photovoltaikanlagen auf den Dächern und ein Batteriespeicher sorgen für eine nachhaltige Energieversorgung. Ergänzend dazu liefert eine Luft-Wasser-Wärmepumpe umweltfreundliche Heizlösungen.

 

Vielseitiger Wohnkomfort und Gemeinschaftsbereiche

Die Wohnungen bieten vielfältige Grundrisse, die den Bedürfnissen unterschiedlicher Bewohner gerecht werden. Zur Auswahl stehen Zwei- und Vierzimmerwohnungen mit Größen von 65 bis 100 m². Jede Einheit ist mit einem Balkon oder einer Terrasse ausgestattet, die Platz zum Entspannen bietet.

Der Außenbereich des Projekts Am Felder Hof schafft ein harmonisches Wohnumfeld. Die geschickte Gestaltung des Freiraums umfasst gemütliche Sitzbereiche, Gemeinschaftsplätze und Spielbereiche, die das Zusammengehörigkeitsgefühl stärken.

 

Infrastruktur und Bauzeit

Das großzügige Grundstück von etwa 13.300 m² bietet ausreichend Parkmöglichkeiten, inklusive vorbereiteter Leerrohr-Anschlüsse für Elektroauto-Ladestationen, um der wachsenden Nachfrage nach E-Mobilität gerecht zu werden. Die geplante stufenweise Fertigstellung wird im Sommer 2026 erfolgen. Das Projekt in Nievenheim verbindet nachhaltiges Wohnen mit exzellenter Anbindung an die lokale Infrastruktur und Freizeitangebote.

 

Nievenheim: Modernes Wohnbauprojekt auf dem ehemaligem Schwimmbadgelände

Das ehemalige Grundstück des Nievenheimer Schwimmbades entwickelt sich zu einem familienfreundlichen Wohnquartier mit entsprechend günstiger Infrastruktur.

Hier entstehen in modularer Holzbauweise und als BIM (Building Information Modeling) Projekt insgesamt 47 öffentlich geförderte Neubauwohnungen. Zudem werden die Mehrfamilienhäuser nach den Richtlinien des BEG 40-Standards hergestellt.

Durch die modulare Bauweise kann entsprechend schnell und ohne lange Bauzeit auf der Baustelle gebaut und dadurch Immissionen reduziert werden.

Im einzelnen entstehen 2-, 3- und 4-Zimmer-Wohnungen in unterschiedlichen Größen sowie mit moderner und zeitgemäßer Ausstattung. Ebenso stehen für die Bewohner ausreichend Außenstellplätze zur Verfügung, die optional mit einer E-Ladesäule ausgestattet werden können.

Für die Anmietung dieser Wohnungen benötigen Sie einen Wohnberechtigungsschein. Diesen können Sie bei der Stadtverwaltung beantragen. Informationen dazu finden Sie hier. 

Die voraussichtliche Fertigstellung erfolgt zum Frühjahr 2026.

Abgeschlossene Projekte

Nachhaltiges Neubauprojekt in der Johannes-Bock-Straße, Dormagen

In der Johannes-Bock-Straße in Dormagen entsteht ein zukunftsweisendes Bauvorhaben, das modernes Design mit ökologischer Bauweise harmonisch vereint. Das innovative Projekt umfasst insgesamt 22 Wohneinheiten und bietet umweltfreundliches und komfortables Wohnen, das auf unterschiedliche Lebensstile zugeschnitten ist.

Energieeffiziente Bauweise und moderne Ausstattung

Das Neubauprojekt an der Johannes-Bock-Straße beeindruckt durch seine hohe Energieeffizienz und erfüllt die Anforderungen des Effizienzhaus-40-NH-Standards. Die umweltschonende Massivholzbauweise trägt erheblich zur Reduzierung des CO₂-Ausstoßes bei und schafft ein angenehmes Wohnklima. Die Heiztechnik basiert auf einer Luft-Wasser-Wärmepumpe in Kombination mit einer Warmwasser-Fußbodenheizung, die in den Wohnungen für wohlige Wärme sorgt.

Alle 22 Wohnungen sind barrierefrei gestaltet und dank großzügiger Aufzugsanlagen bequem erreichbar. Zudem bieten großzügige Mieterkeller zusätzlichen Stauraum und erhöhen den Wohnkomfort.

Photovoltaikanlagen und begrünte Dächer

Die Gebäude in der Johannes-Bock-Straße sind mit etwa 95 Photovoltaik-Modulen ausgestattet, die auf einer Fläche von rund 189 m² eine Leistung von etwa 41 kWp erzeugen. Diese umweltfreundliche Energieerzeugung macht das Projekt noch nachhaltiger. Ergänzend dazu sorgt eine Dachbegrünung auf etwa 570 m² für ein verbessertes Mikroklima und unterstützt die Biodiversität.

Umweltfreundliche Außenanlagen und E-Mobilität

Auch im Außenbereich setzt das Bauvorhaben auf nachhaltige Lösungen. Insgesamt stehen 23 begrünte PKW-Stellplätze zur Verfügung, die mit Vorrichtungen für E-Mobilität ausgestattet sind. Die versiegelungsoffene Erschließungsstraße mit Ecorastern fördert die natürliche Regenwasserversickerung und minimiert die Flächenversiegelung.

Das Neubauprojekt in der Johannes-Bock-Straße in Dormagen ist eine ideale Wahl für umweltbewusste Menschen, die modernen Wohnkomfort mit ökologischer Verantwortung verbinden möchten. Mit seiner durchdachten Bauweise und den nachhaltigen Außenanlagen bietet dieses Projekt zukunftsorientiertes Wohnen auf höchstem Niveau.

Voraussichtlicher Fertigstellungstermin ist der 01.01.2026

Nachhaltiges Wohnprojekt an der Von-Stauffenberg-Straße, Dormagen

Die Von-Stauffenberg-Straße in Dormagen wird bald um ein innovatives Neubauprojekt bereichert, das moderne Architektur mit ökologischer Nachhaltigkeit vereint. Geplant sind insgesamt 36 Wohneinheiten, verteilt auf drei separate Gebäude. Der Baubeginn ist für März 2024 angesetzt, und die Fertigstellung erfolgt in den Sommermonaten 2025 schrittweise.

Energieeffiziente Ausstattung und moderner Wohnkomfort

Die Wohnungen an der Von-Stauffenberg-Straße in Dormagen setzen neue Standards in Sachen Energieeffizienz und Komfort. Alle Einheiten werden nach dem Energiestandard Effizienzhaus 40 NH gebaut, der für besonders hohe Energieeinsparungen steht. Die Heiztechnik basiert auf einer fortschrittlichen Luft-Wasser-Wärmepumpe, die in Kombination mit einer Fußbodenheizung ein gleichmäßiges und behagliches Raumklima schafft.

Ein Highlight des Projekts ist die nachhaltige Holzbauweise, die nicht nur ökologisch vorteilhaft, sondern auch visuell ansprechend ist. Jede Wohnung ist barrierefrei gestaltet und über großzügige Aufzugsanlagen erreichbar, was Komfort für alle Generationen gewährleistet.

 

Umfassende Photovoltaik-Anlage für nachhaltige Energie

Ein zentrales Merkmal des Projekts in der Von-Stauffenberg-Straße ist die großzügige Photovoltaik-Anlage. Etwa 350 PV-Module erstrecken sich über eine Fläche von rund 700 m² und liefern eine Leistung von etwa 130 kWp. Diese nachhaltige Energiequelle trägt maßgeblich zur CO₂-Reduktion bei und unterstützt die umweltfreundliche Ausrichtung des gesamten Bauvorhabens.

 

Naturnahe und durchdachte Außenanlagen
Die Außenbereiche der Wohnanlage sind parkähnlich gestaltet und fördern ein naturnahes Lebensumfeld. Mit 33 neu gepflanzten Bäumen und etwa 450 heimischen Sträuchern wird die Biodiversität vor Ort gestärkt. Zudem stehen 42 begrünte PKW-Stellplätze zur Verfügung, die mit Lehrrohr-Anschlüssen für Elektrofahrzeuge ausgestattet sind. Zwei öffentliche E-Ladestationen werden durch die evd bereitgestellt. Die Erschließungsstraße ist mit Ecorastern ausgestattet, die eine effektive Regenwasserversickerung ermöglichen und den Versiegelungsgrad minimieren.

Das Bauprojekt an der Von-Stauffenberg-Straße in Dormagen bietet eine gelungene Kombination aus nachhaltigem Bauen, modernem Wohnkomfort und sozialer Verantwortung. Mit hoher Energieeffizienz und großzügigen, naturnahen Freiflächen stellt es eine attraktive Wohnlösung für umweltbewusste Menschen dar, die Wert auf barrierefreies und zukunftsorientiertes Wohnen legen.

Die geplante Fertigstellung ist voraussichtlich am 30. September 2025. 

II. Bauabschnitt auf der Agnes-Derichsweiler-Straße – Errichtung von modernen und ökologisch nachhaltigen Einfamilienhäuser

In Dormagen-Hackenbroich wird auf dem Gelände der früheren „Alten Schule“, nach dem Bau des Mehrfamilienhauses, ein weiteres Wohnprojekt realisiert, das sowohl ökologische als auch soziale   Aspekte ausgewogen miteinander verbindet. Es entstehen an der Agnes-Derichsweiler-Straße 1 und 1a, 2 und 2a sowie 4 und 6, moderne Einfamilienhäuser mit Einliegerwohnung sowie ein Doppelhaus. Die Einfamilienhäuser stechen durch zeitgemäßen Komfort und ökologische Bauweise hervor.

 

Nachhaltige Bauweise und moderne Ausstattung

Die Einfamilienhäuser beeindrucken durch ihre nachhaltige Holzrahmenbauweise und den Einsatz von energieeffizienter Technologie. Die Beheizung erfolgt über eine intelligente Frischluftwärmetechnik, die durch eine kontrollierte Be- und Entlüftung mit Wärmerückgewinnung den Wohnraum angenehm beheizen. Durch den Einsatz der Luftheizung entfallen sämtliche Heizkörper in der Wohnung.

 

Photovoltaikanlagen und begrünte Dächer

Auf dem Dach des Gebäudes wurde eine Photovoltaikanlage mit einer Leistung von ca. 8 kWp installiert, unterstützt durch einen Batteriespeicher mit 8,8 kWh. Diese nachhaltige Stromversorgung reduziert die Abhängigkeit von externen Energiequellen und leistet einen wichtigen Beitrag zum Umweltschutz. Zusätzlich trägt die extensive Dachbegrünung zur Verbesserung des Mikroklimas bei und fördert die biologische Vielfalt.

 

Moderne Ausstattung und funktionale Grundrisse

Das Neubauprojekt in der Agnes-Derichsweiler-Straße umfasst sechs tweilweise großzügige Wohnungen, die sich durch ihre moderne Ausstattung und durchdachte Raumaufteilung auszeichnen. Die Wohnflächen variieren und bieten die folgenden Optionen:

  • Einfamilienhaus: Vierzimmer mit jeweils rd. 135 m² Wohnfläche
  • Einfamilienhaus (Doppelhaus): Vierzimmer mit jeweils rd. 116 m² Wohnfläche
  • Einliegerwohnung: Ein-Zimmer mit jeweils rd. 32 m² Wohnfläche

Jede Wohnung bietet eine großzügige Terrasse, der einen schönen Ausblick und Raum für Erholung bietet. Außerdem sind die Häuser mit folgenden Merkmalen ausgestattet:

  • Hochgeschwindigkeits-Glasfaseranschluss
  • Elektrische Rollläden
  • Bodengleiche Dusche
  • Umweltfreundliche Dachbegrünung
  • PKW-Stellplatz mit der Möglichkeit eine E-Ladestation zu installieren

Das II. Bauabschnitt an der Agnes-Derichsweiler-Straße setzt neue Standards für modernes und umweltbewusstes Wohnen und bietet zugleich eine attraktive und zentrale Wohngelegenheit.

Die geplante Fertigstellung ist voraussichtlich im Sommer 2025. 

Nievenheim: Kita-Neubau auf dem Gelände am Schwimmbad

Neben der Wohnungsbebauung entsteht im inneren Bereich des Grundstückareals am Schwimmbad eine moderne Kindertagesstätte. Die Kita entsteht in Holzbauweise und wird die Anforderungen des DGNB Silber Standards erfüllen.

Bei eine Nutzfläche von rund 1.300 m² entstehen 6 Gruppen und Platz für ca. 100 Kinder. Begleitet wird das Projekt durch die Förderung KFN-Klimafreundliches Neubau für Nichtwohngebäude.

Neben der vorgeschriebenen Ausstattung erhält die Kita eine klimafreundliche Wärmepumpe nebst einer PV-Anlage und zudem eine Dachbegrünung. Außerdem wird das Regenwasser auf dem Grundstück in das Erdreich versickert.

Die voraussichtliche Fertigstellung erfolgt im November 2024.

Ziel wird es sein, eine gesunde und ausgewogene Mieterstruktur zwischen Jung und Alt zu ermöglichen und eine gelebte Nachbarschaft zu fördern.

  • Außenanlage: parkähnliche Grünanlage mit Sitzbank und Spielgeräten
  • Ausgewogene architektonische und in das Ortsbild passende Baukörper
  • Nachhaltige Bauweise

Wohnbauprojekt in der Odilienstraße, Dormagen

In Dormagen-Gohr entsteht in der Odilienstraße ein innovatives Wohnprojekt, das modernes Design mit nachhaltiger Bauweise kombiniert. Auf einem bisher unbebauten Grundstück wird ein freistehendes Mehrfamilienhaus mit fünf exklusiven Wohneinheiten errichtet. Dieses Bauvorhaben setzt neue Maßstäbe in Sachen Wohnkomfort und Nachhaltigkeit und soll im Sommer 2024 bezugsfertig sein.

Zeitgemäße Architektur und hochwertige Ausstattung

Das Mehrfamilienhaus erstreckt sich über drei Vollgeschosse, wobei das dritte Obergeschoss zurückspringt und dadurch Platz für eine großzügige Dachterrasse schafft. Diese Gestaltung verleiht dem Gebäude eine moderne, kubische Optik und bietet den Bewohnern zusätzliche private Außenbereiche.

Die Wohneinheiten in der Odilienstraße sind als Zwei- und Vier-Zimmer-Wohnungen konzipiert, die jeweils mit Balkonen oder Terrassen ausgestattet sind. Diese Außenflächen erweitern den Lebensraum und schaffen ideale Rückzugsorte für entspannte Stunden im Freien.

 

Nachhaltige Energiekonzepte

Das Dach des Gebäudes ist mit 28 Photovoltaik-Modulen bestückt, die eine Leistung von etwa 11,7 kWp erzeugen. Unterstützt durch einen Batteriespeicher, trägt die Photovoltaikanlage zu einer umweltfreundlichen Energieversorgung bei. Die Beheizung erfolgt über eine effiziente Luft-Wasser-Wärmepumpe, die gemeinsam mit einer Fußbodenheizung für eine angenehme Wärme sorgt. Jede Wohnung verfügt über eine eigene Wohnungsstation, die eine dezentrale und individuelle Regelung der Heizung und Warmwasserbereitung ermöglicht. Zudem sorgt eine lokale Regenwasserversickerung für eine nachhaltige Wasserbewirtschaftung und reduziert den Frischwasserverbrauch.

 

Barrierefreiheit und moderner Komfort

Alle Wohnungen sind barrierefrei gestaltet und bieten großzügige Mieterkeller sowie Abstellmöglichkeiten für Fahrräder. Die PKW-Stellplätze befinden sich direkt vor dem Gebäude und sind mit Anschlüssen für Elektrofahrzeuge ausgestattet, um den Bedürfnissen moderner Mobilität gerecht zu werden.

Das Neubauprojekt in der Odilienstraße in Dormagen vereint innovative Architektur, nachhaltige Energiekonzepte und hohen Wohnkomfort zu einem einzigartigen Lebensraum. Die zentrale Lage in Gohr macht dieses Projekt besonders attraktiv für alle, die nach einer hochwertigen und zukunftssicheren Wohnlösung suchen.
 

Neubau Bahnhofstraße Dormagen: Nachhaltiges Wohnen im Zentrum

In der Bahnhofstraße Dormagen, genauer gesagt an der Hausnummer 112, entstand ein modernes Mehrfamilienhaus mit acht Wohneinheiten, das sowohl ökologische als auch soziale Aspekte harmonisch miteinander verbindet. Das Bauprojekt wurde von der städtischen Wohnraumgesellschaft WORADO innerhalb von nur 16 Monaten erfolgreich abgeschlossen und bietet modernen Wohnkomfort in zentraler Lage.


Nachhaltige Bauweise und moderne Ausstattung


Das Mehrfamilienhaus in der Bahnhofstraße Dormagen überzeugt durch seine nachhaltige Bauweise und den Einsatz energieeffizienter Technologien. Die Beheizung erfolgt über eine innovative Luft-Wasser-Wärmepumpe, die in Kombination mit einer Fußbodenheizung für ein angenehmes und gleichmäßiges Wohnklima sorgt. Eine kontrollierte Be- und Entlüftung der Wohnungen mit Wärmerückgewinnung sorgt für zusätzlichen Komfort und Energieeffizienz.


Auf dem Dach des Gebäudes wurde eine Photovoltaikanlage mit einer Leistung von ca. 10 kWp installiert, unterstützt durch einen Batteriespeicher mit 8 kW. Diese nachhaltige Stromversorgung reduziert die Abhängigkeit von externen Energiequellen und leistet einen wichtigen Beitrag zum Umweltschutz. Zusätzlich trägt die extensive Dachbegrünung zur Verbesserung des Mikroklimas bei und fördert die biologische Vielfalt.


Hoher Wohnkomfort und starke Gemeinschaft


Die acht Wohneinheiten in der Bahnhofstraße 112 bieten vielfältige Möglichkeiten zur Entspannung im Freien, sei es auf den großzügigen Balkonen, den Terrassen mit eigenen Gärten oder den einladenden Dachterrassen. Die Wohnungen sind so konzipiert, dass sie den Bedürfnissen unterschiedlicher Lebensstile gerecht werden, ob für Singles, Paare oder Familien.


Ein liebevoll gestalteter Spielplatz auf dem Gelände sorgt für ein kinderfreundliches Umfeld und stärkt das Gemeinschaftsgefühl unter den Bewohnern.


Zentrale Lage und ausgezeichnete Anbindung


Dank der zentralen Lage in der Bahnhofstraße Dormagen profitieren die Bewohner von einer ausgezeichneten Anbindung an den öffentlichen Nahverkehr sowie einer Vielzahl von Einkaufsmöglichkeiten und Freizeitangeboten in unmittelbarer Nähe. Auf dem Gelände stehen acht Stellplätze zur Verfügung, die mit versickerungsfähigen Bodengitterplatten ausgestattet sind. Zudem gibt es vorbereitete Anschlüsse für E-Ladesäulen, um der wachsenden Nachfrage nach Elektromobilität gerecht zu werden.

Neues Wohnquartier an der Agnes-Derichsweiler-Straße 3

In Dormagen-Hackenbroich wird auf dem Gelände der früheren „Alten Schule“ ein neues Wohnprojekt realisiert, das innovative Wohnkonzepte und nachhaltige Baupraktiken vereint. Der Neubau an der Agnes-Derichsweiler-Straße 3 wird ein modernes Mehrfamilienhaus präsentieren, das durch seinen zeitgemäßen Komfort und ökologische Bauweise das Stadtbild aufwertet.


Optimale Lage und exzellente Erreichbarkeit


Die Agnes-Derichsweiler-Straße 3 befindet sich im Zentrum von Dormagen-Hackenbroich und bietet eine erstklassige Verkehrsanbindung. Die Nähe zu öffentlichen Verkehrsmitteln und der Autobahn erleichtert das Pendeln, während Schulen, Einkaufsgelegenheiten und Freizeitmöglichkeiten bequem erreichbar sind. Diese zentrale Lage macht das Wohnprojekt besonders attraktiv für verschiedene Lebensstile.


Erstklassige Ausstattung und durchdachte Raumgestaltung


Das Neubauprojekt in der Agnes-Derichsweiler-Straße umfasst acht großzügige Wohnungen, die sich durch ihre moderne Ausstattung und durchdachte Raumaufteilung auszeichnen. Die Wohnflächen variieren und bieten die folgenden Optionen:


•    Vierzimmer-Wohnungen mit ca. 90 bis 92 m²
•    Dreizimmer-Wohnungen mit etwa 88 m² und 98 m²
•    Zweizimmer-Wohnungen mit rund 64 m² und 66 m²


Jede Wohnung bietet einen großzügigen Balkon, der einen schönen Ausblick und Raum für Erholung bietet. Die Wohnungen in der Agnes-Derichsweiler-Straße sind mit folgenden Features ausgestattet:


•    Hochgeschwindigkeits-Glasfaseranschluss
•    Elektrische Rollläden und bodengleiche Duschen für zusätzlichen Komfort
•    Barrierefreier Zugang durch einen Aufzug
•    Gemeinschaftsräume wie Fahrradkeller, Waschküche und private Kellerabteile
•    Umweltfreundliche Dachbegrünung und Regenwasserversickerung
•    PKW-Stellplätze mit der Möglichkeit, eine E-Ladestation zu installieren


Das ansprechend gestaltete Außengelände beinhaltet einen Spielplatz sowie zusätzliche Stellplätze für Besucher.


Umweltbewusste Energieversorgung für nachhaltiges Wohnen


Ein wesentliches Merkmal des Neubaus in der Agnes-Derichsweiler-Straße 3 ist seine umweltfreundliche Energieversorgung. Die effiziente Geothermie-Wärmepumpe sorgt für eine umweltfreundliche Wärmeversorgung, während die moderne Photovoltaikanlage den Strombedarf der Gebäude deckt. Diese Kombination erneuerbarer Energien sichert eine nachhaltige und ökonomische Energieversorgung. Die Fußbodenheizung gewährleistet zudem ein behagliches Raumklima.


Das Wohnprojekt an der Agnes-Derichsweiler-Straße setzt neue Standards für modernes und umweltbewusstes Wohnen und bietet zugleich eine attraktive und zentrale Wohngelegenheit.

Rheinfeld: Piwipper Straße 6

Das Projekt in Rheinfeld umfasst eine Generalsanierung eines 4-Familienhauses. Das Haus ist aufgrund des Bauzustandes derzeit nicht mehr bewohnbar. Aus diesem Grund wird das Gebäude generalsaniert und auf einen adäquaten und modernen Standard gebracht. Es entstehen vier 4-Zimmerwohnungen mit jeweils 81 m² Wohnfläche, nebst Kellerräume, Stellplätze, Spielplatz, Müll- und Fahrrad-Schuppen, Glasfaseranschluss und zwei öffentlichen E-Ladestationen. Die Beheizung erfolgt über eine Wärmepumpe mittels Erdsonden, die durch die auf dem Dach angebrachte PV-Anlage stromtechnisch unterstützt wird. Die Fertigstellung ist voraussichtlich Ende 2022. Das Haus ist schon komplett vermietet.